0
Skip to Content
EDA - Echo Design + Architecture
EDA - Echo Design + Architecture
Work
Featured Work
Project Index
Residential
Thoughts
About
Studio
Services
Press
Clients
Contact
EDA - Echo Design + Architecture
EDA - Echo Design + Architecture
Work
Featured Work
Project Index
Residential
Thoughts
About
Studio
Services
Press
Clients
Contact
Folder: Work
Back
Featured Work
Project Index
Residential
Thoughts
Folder: About
Back
Studio
Services
Press
Clients
Contact
Logo of Broadway Technology and EDA collaboration
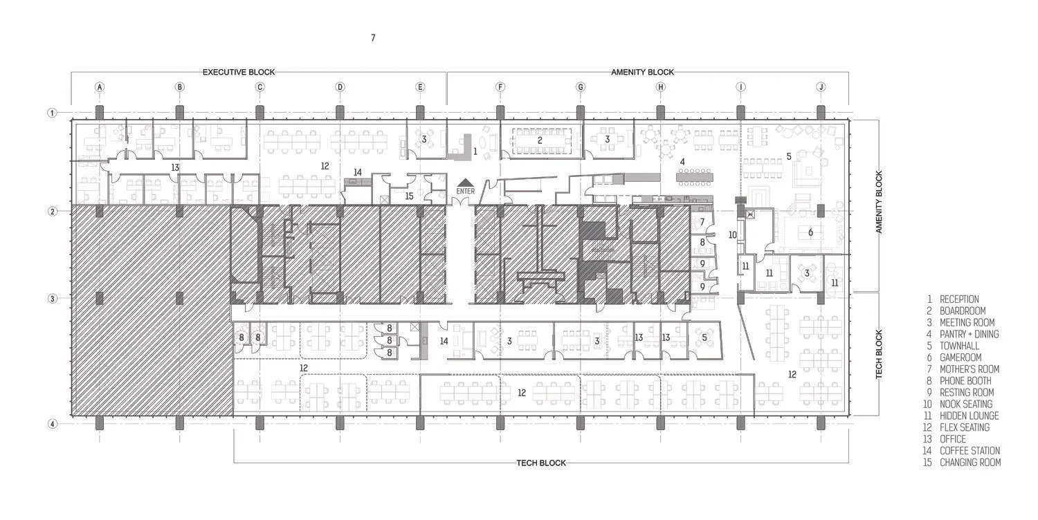
Office floor plan with labeled areas: reception, boardroom, meeting rooms, pantry and dining, townhall, gameroom, mother's room, phone booth, resting room, nook seating, hidden lounge, flex seating, offices, coffee station, changing room. Sections in
Modern office lobby with Broadway Technology reception desk, person seated on sofa, vertical green plant wall, large windows, and conference room.
Modern office hallway with glass-walled rooms and overhead lighting.
Modern conference room with a large wooden table, black chairs, panoramic windows, and dual wall-mounted screens displaying mountain scenery.
Modern office lounge with seating, plants, and graffiti wall with 'Together' neon sign.
Room with blue chair, retro video game themed wall art, arcade decor, mini arcade machine on small table, video game graphics on walls.
Modern conference room with city view, featuring a large table, blue chairs, wall-mounted screens, and a geometric light fixture.
Modern office lounge with large screen, two people watching a movie, leather and fabric sofas, plants, and a city view through large windows.
Room with comic book cover collage wall and modern chairs
Modern office kitchen with blue cabinetry, bar stools, dining tables, and a green plant wall.
Animated 3D floor plan of office space with changing furniture arrangements and walls.
Modern office interior with glass-walled meeting room and open workspace, featuring desks, computers, and ceiling lights.
Modern office lounge with seating and neon sign reading 'Together'
Two people playing table tennis in a room with travel posters on the walls.
Podcast recording studio with red acoustic panels, two chairs, and a microphone on a small table.
Thank you message with contact details on black background from EDA design company.